type de bâtiment: Maison individuelle.
surface du terrain: 4000m².
année de construction: 2000.
Villa Sunset extends over a spacious property of around four thousand square metres.
The well-maintained garden surrounds the inviting pool with a sunbathing area, and the property is adorned with olive trees and fragrant laurel bushes.
This luxurious villa not only offers breathtaking views of the sea, but is also an oasis of peace and beauty.
The location is ideal for sporting activities, excursions in the surrounding area or cosy days by the pool or beach.
Enjoy a variety of experiences and be enchanted by the mesmerising sunsets.
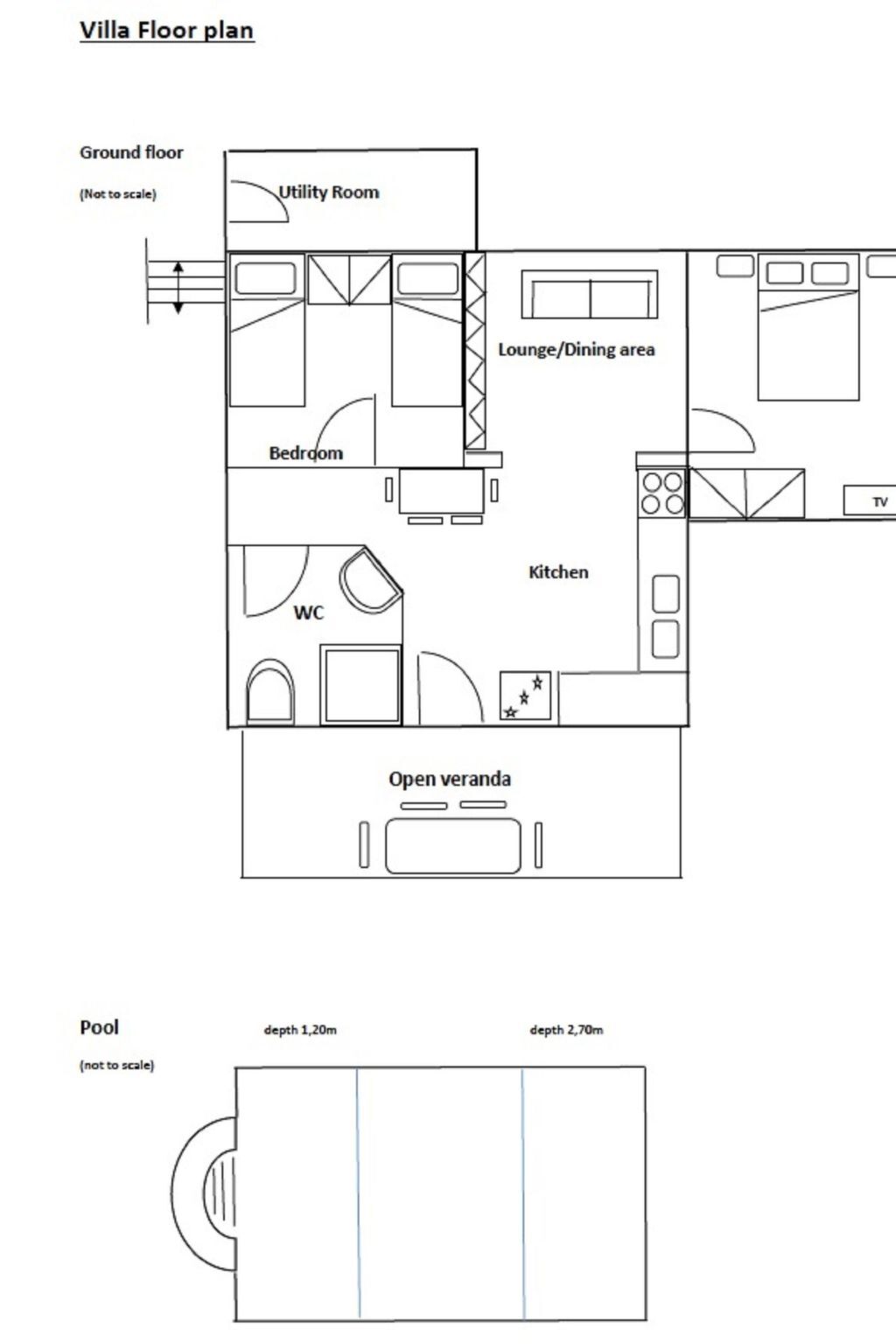
The three-storey, 250 m² villa is divided into two luxurious sections.
On the ground floor of the main building there are two bedrooms (one with two single beds that can be joined together and the other with a single bed), a bathroom with shower and a very large, cosily furnished living room.
The living room adjoins a fully equipped open-plan kitchen.
From here you have direct access to the large covered terrace with a breathtaking panoramic view over the Gulf of Messinia.
The terrace is the perfect place to enjoy the most beautiful sunsets.
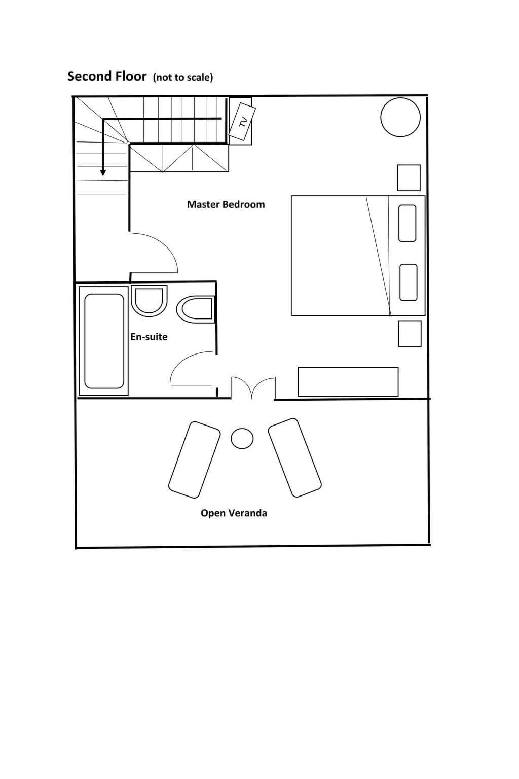
In the tower of the villa is the large master bedroom with a king-size double bed and an en-suite bathroom with bathtub.
From the bedroom you have access to a terrace with spectacular views of the sea and the mountains.
The second section, located one level below, functions as an independent guest flat.
The impressive pool, which is open from 1 May to 31 October, is also located on this level.
The guest flat consists of two bedrooms (the master bedroom and a smaller room with two single beds), a living room with an additional sleeping possibility, a dining area and an open-plan kitchen as well as a bathroom with shower.
This flat can accommodate up to five people.
In the basement of the villa there is a laundry room with washing machine, iron and ironing board, which is available to guests.
In total, the villa has five bedrooms, three bathrooms, two kitchens, two living rooms, a laundry room and four terraces on different levels with views of either the mountains or the sea.
The villa can therefore accommodate up to eleven people.
The terrace offers first and foremost a fantastic view of the glittering sea.
The spacious, covered terrace with its elegant sandstone arches provides the ideal setting to enjoy your breakfast with the landlord's homemade jams, and access to the secure pool area and the refreshing pool is easy from both sides of the villa.
Evenings on the terrace under the twinkling starry sky not only offer a unique barbecue experience, but also continue to showcase the mesmerising sea views.
This villa is more than just a holiday home - it is your personal retreat with a breathtaking view of the ever-changing sea.
Welcome to Villa Sunset, your home with an unrivalled sea backdrop!
Facilities include: a private pool (open from 15 April to 15 October), washing machine, iron and ironing board, dishwasher, microwave, safe, portable barbecue, three satellite TVs, garden furniture and sun loungers, bath towels, Wi-Fi and air conditioning in all rooms.
Fresh bed linen and towels (2 per person) are provided and are changed once a week.
Of course we also offer a cleaning service if you wish.
The villa is only one and a half kilometres from Stoupa, a tranquil tourist village with cafés, tavernas, car and bicycle hire and two of the most beautiful sandy beaches - ideal for small children.
The bakery, three tavernas, the bus stop and the nearest shops are only about 300 metres away.
The villa is the ideal place for a relaxing holiday in a beautiful landscape and a safe environment for children.
From here you can go on various excursions to the nearby unique sights, such as stalactite caves, traditional mountain villages with maniotic defence towers, old Byzantine churches and monasteries, etc.
You can also go on shorter and longer hiking tours through the unique landscape and be surprised again and again by its diversity.
Of course you can also go diving, snorkelling, hiking, horse riding or mountaineering.
Here you can relax from the stresses and strains of everyday life and enjoy your holiday.
Your landlady will be happy to provide you with information and hiking tips.
Basic information
- Pets allowed: none
- is located in: Residence
- type of apartment: Maisonette
- type of building: Detached house
- Total number of floors in the building above the ground floor: 2
- size of property: 4000 m²
- year of construction: 2000
- Year of the last complete renovation : 2014
- detached house
- not observable from the street
- non-smoking
- Number of bedrooms: 5
- Number of bathrooms: 2
Top features
- WiFi
- air conditioning: Everywhere
- heating: Everywhere
- terrace
- garden: For sole use
- completely enclosed (by wall, fence or hedge)
- outdoor pool
- ㄴ for sole use
- Total of private car parking spaces: 4
- ㄴ of which carport spaces: 2
- ㄴ of which private outdoor parking spaces: 4
Sleeping
bedroom 10
- 2x single bed
- bedroom is dimmable
bedroom 2
- double bed (1.80 m width)
- bedroom is dimmable
bedroom 4
- double bed (from 1.51 m to 1.79 m width)
- bedroom is dimmable
bedroom 6
- single bed
- extra bed
- bedroom is dimmable
bedroom 8
- 2x single bed
- bedroom is dimmable
in the living area
- extra bed
- child's bed/ baby's cot
Bathroom
bathroom 2
- shower
- basin
- toilet
- hair dryer
- daylight
bathroom 4
- shower
- basin
- toilet
- hair dryer
- daylight
in one bedroom
- bath tub with shower
- basin
- toilet
- hair dryer
- daylight
Cooking/Living
- coffee machine: filter coffee machine, capsule coffee machine
- fridge/freezer: freezing compartment, deep freezer, fridge
- stove: stove
- kitchen hood
- oven
- toaster
- microwave
- electric kettle
- dishwasher
- dishtowels
- number of dining tables: 2
- number of seats: 2
- number of living rooms: 2
- living room is dimmable
Entertainment
- TV: TV, satellite TV
- DVD player
- music system
- radio
- CD player
For children
- high chair
Utility
- washing machine: For sole use in the object
- iron
- vaccum cleaner
- fan: None
- smoke alarm
- safe
Outside area
- veranda
- roof terrace
- outdoor furniture
- grill/barbecue: grill/barbecue
- outside shower
Surroundings
- view: sea/lake
- Nearest town centre: 150 m
- Grocery store: 300 m
- going out: 300 m
- restaurant: 300 m
- airport: 44,0 km
- motorway: 44,0 km
- port: 224,0 km
- distance public transport: 400 m
- beach: 1,5 km
- shingle beach: 3,0 km
- sandy beach: 1,5 km
- water (sea, lake, etc.): 1,5 km
- sea: 1,5 km
- water sports: 1,5 km
- boat hire
- playground: 1,5 km
- bicycle hire: 1,5 km
- hiking trail: 100 m
Chaise haute Inclus |
Changement des draps et serviettes Inclus |
Climatisation Inclus |
ERV assurance annulation gratuite Inclus |
Frais d'énergie Inclus |
Internet sans fil (WIFI) Inclus |
Linge de lit (premier jeu) Inclus |
Lit bébé (jusqu'à 2 ans) Inclus |
Lit supplémentaire Inclus |
Machine À Laver Inclus |
Serviettes (premier jeu) Inclus |
Torchons Inclus |
parking extérieur Inclus |
Nettoyage final (le nettoyage de base est toujours à faire par le client) à payer sur place prix forfaitaire 120,00 € (Valable du 01/01/2024 au 31/12/2099) |
Taxe de séjour à payer sur place par jour 15,00 € (Valable du 01/01/2024 au 31/12/2099) |
Ménage intermédiaire En option sur place prix forfaitaire 80,00 € (Valable du 01/01/2024 au 31/12/2099) |
Une question à propos de cette maison de vacances ?

Soyez couverts en cas d'imprévus ou de sinistres en souscrivant à l'assurance location de vacances
Souscrire ?Noorea.com, c'est ...
15 ans d'expérience.
Planning et prix en temps réel.
Réservation 100% sécurisée.
Pas de commissions.
Une équipe à votre écoute.
Vous avez réservé votre maison de vacances sur Noorea.com ?
Noorea propose principalement des propriétés indépendantes : maisons, villas et chalets.
Des hébergements proposés par des centrales de réservation et agences de locations saisonnières.
Réservez votre séjour en toute confiance, les transactions sont cryptées et totalement sécurisées.
Des conseillers sont à votre disposition pour toutes questions, ou pour effectuer une réservation.