Maison de vacances avec 3 chambres
La Maison Jaune est une maison individuelle avec vue sur mer, située dans le luxueux Domaine du Golf, qui comprend une piscine et des courts de tennis.
Elle bénéficie d'un emplacement privilégié (avec une vue imprenable !) à proximité immédiate du golf de Roquebrune-sur-Argens, doté d'une piscine, d'un bassin pour enfants, de trois courts de tennis et d'un terrain de pétanque. La maison offre trois chambres, deux salles de bains, un jardin, un balcon et une vue sur la mer Méditerranée !
L'agencement est le suivant : un jardin à l'avant, un hall d'entrée avec WC invités et un séjour lumineux avec portes-fenêtres donnant sur le jardin arrière, offrant une vue à couper le souffle sur la Méditerranée et les magnifiques montagnes de l'Esterel.
À l'avant de la maison se trouve une cuisine ouverte en U, entièrement équipée.
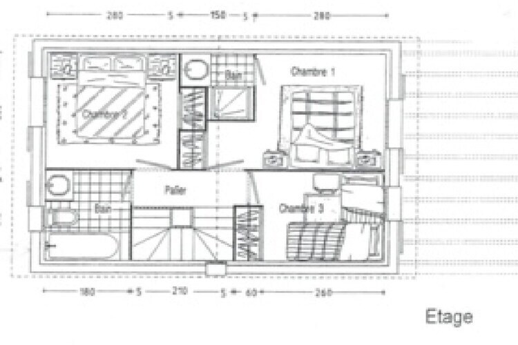
Un escalier en pierre mène au premier étage où se trouvent trois chambres. Deux d'entre elles sont situées à l'arrière de la maison. L'une d'elles dispose d'un lit double (1,80 x 2 m), d'une salle d'eau privative et de portes-fenêtres donnant sur un balcon/terrasse offrant une vue tout aussi splendide ! La deuxième chambre est équipée d'un lit simple, et la troisième, située à l'avant, d'un lit double (1,40 x 2 m). La deuxième salle de bain comprend une baignoire et des toilettes séparées. Toutes les chambres bénéficient de beaux hauts plafonds et de placards intégrés. La maison est climatisée.
La propriété se trouve sur une colline surplombant le golf et offre une vue imprenable sur Fréjus et la mer Méditerranée. Le pittoresque village provençal de Roquebrune-sur-Argens est à environ 5 km à l'intérieur des terres. Les Issambres, desservi par des liaisons vers Sainte-Maxime et Saint-Tropez, est à environ 10 minutes en voiture de la côte. Vous pouvez également emprunter la route côtière depuis Saint-Aygulf jusqu'à Fréjus et Saint-Raphaël.
En haute saison, la location est possible pour un séjour minimum d'une semaine ; les arrivées et les départs se font le samedi. Hors saison, les séjours minimum sont de quatre nuits. Les dates d'arrivée et de départ sont également flexibles.
Rez-de-chaussée: (Salle de séjour(, , , TV, TV, table, installation stéréo, climatisation), cuisine(, , poêle, bouilloire, grille-pain, cafetière/percolateur, four, micro ondes, lave-vaisselle , réfrigérateur, congélateur, climatisation), guest toilet(, WC, lavabo)) Au 1er étage: (chambre(, lit double, climatisation), chambre(, lit double, climatisation), chambre(, lit simple, lave-linge , climatisation), salle de bains(, WC, baignoire, lavabo), salle de bains(, , douche, lavabo)) , , Accès Internet, Accès Internet, lave-linge , chauffage, terrasse(Barbecue central, Plage, table, grill, mobilier de jardin, transats), terrasse(mobilier de jardin, transats), jardin(Plage, mobilier de jardin, transats, piscine), parking, table à repasser, fer à repasser, séchoir
Animaux : Non admis Information |
Draps : A emporter Information |
Nettoyage final : Inclus Inclus |
Électricité : Inclus Inclus |
Eau : Included En supplément |
Heating : Included En supplément |
Serviettes de bain A emporter |
Wifi Gratuit |
Climatisation Included |
Une question à propos de cette maison de vacances ?

Soyez couverts en cas d'imprévus ou de sinistres en souscrivant à l'assurance location de vacances
Souscrire ?Noorea.com, c'est ...
15 ans d'expérience.
Planning et prix en temps réel.
Réservation 100% sécurisée.
Pas de commissions.
Une équipe à votre écoute.
Vous avez réservé votre maison de vacances sur Noorea.com ?
Noorea propose principalement des propriétés indépendantes : maisons, villas et chalets.
Des hébergements proposés par des centrales de réservation et agences de locations saisonnières.
Réservez votre séjour en toute confiance, les transactions sont cryptées et totalement sécurisées.
Des conseillers sont à votre disposition pour toutes questions, ou pour effectuer une réservation.