type de bâtiment: maison mitoyenne.
surface du terrain: 135m².
année de construction: 1992.
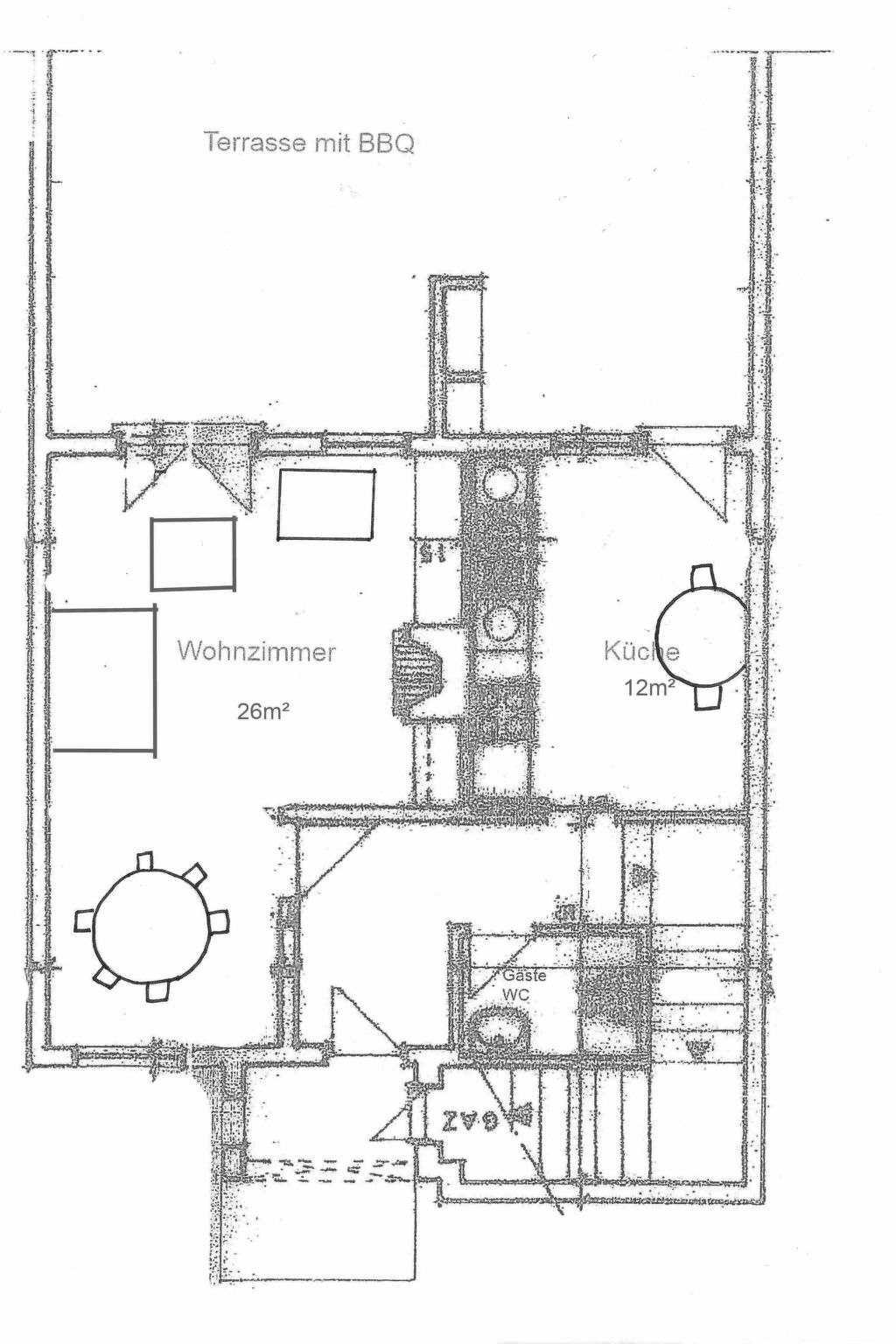
The comfortably furnished holiday house meets the highest of standards and welcomes you with 120m² of living space, comprising a ground floor with communal rooms and an upper floor with two bedrooms and two bathrooms.
The ground floor has a comfortable and spacious living room with a sofa bed for up to two people, a dining table and access to the terrace, a big and fully-equipped, separate kitchen, and a guest WC.
The upper floor has two bedrooms, one with a double bed (200 x 220cm) that can also be divided into two single beds, and one bedroom with two single beds (100 x 220cm), which can also be joined together as a double bed.
Both bedrooms have a door leading out onto the balcony.
The two bathrooms with a WC and washbasin, of which one has a shower cubicle and the other has a bath with a shower screen, are en-suite to the bedrooms.
A highlight in the shower room are the massage jets in the shower.
After a day trip you can relax in the comfortable living room.
The pull-out sofa bed and two leather armchairs provide comfortable seating, while being entertained by the flatscreen TV with satellite channels and a DVD player, for sociable film evenings by a crackling fire in the adjacent fireplace.
The terrace door, the white walls and the white tiles allow plenty of daylight into the room, which is pleasantly light.
On the other side there is a round dining table with plenty of space for enjoying meals together.
The separate built-in kitchen offers plenty of space and modern fittings, including a stove with four electric rings and an oven, a dishwasher, fridge and washing machine, as well as a coffee and espresso machine, kettle, toaster and microwave, for convenient self-catering.
Air conditioning, a safe and free wireless Internet access are provided.
This is a two-storey holiday house, which is a row house on a holiday complex.
The complex is on the edge of the town centre, not far from the Algarve beaches.
Several shops, bars, restaurants and a tennis court await you in the immediate vicinity, within 150 to 300 metres.
The town centre with its historical core is within a 12-minute walk.
The town has a historical significance, evidence of which can still be visited today.
It is a 700-metre walk to the picturesque sandy beach.
The living room and the kitchen open onto the terrace, so you can also dine outdoors at the table and chairs under a parasol.
Various indigenous plants such as a lemons tree frame the terrace that is largely shielded from views in.
There is also a barbecue.
The holiday complex has two pools for adults and two children’s pools.
Free private parking spaces are available by the house.
An external 24-hour administration is provided, which is available for check-in, check-out and all questions and problems on site.
Holiday house with a quality interior and a private terrace, wireless Internet access and air conditioning, on a well-kept holiday complex with shared pools
Basic information
- Pets allowed: none
- is located in: holiday park
- type of building: terraced house
- Total number of floors in the building above the ground floor: 1
- size of property: 135 m²
- year of construction: 1992
- Number of bedrooms: 2
- Number of bathrooms: 2
Top features
- WiFi
- balcony
- terrace
- Total of private car parking spaces: 1
- ㄴ of which garage spaces: None
- ㄴ of which carport spaces: None
- ㄴ of which private outdoor parking spaces: None
Sleeping
bedroom 2
- double bed (more than 1,80 m width)
bedroom 4
- 2x single bed
Sleeping options at the property
- double sofa bed for 2 people
- child's bed/ baby's cot
Bathroom
bathroom 2
- shower
bathroom 4
- bath tub
Sanitary facilities at the property
- shower
- bath tub
- 3x toilet
- hair dryer
Cooking/Living
- coffee machine: coffee machine
- fridge/freezer: freezing compartment, fridge
- stove: stove
- oven
- toaster
- microwave
- electric kettle
- dishwasher
- number of dining tables: no
- number of seats: no
- fireplace
Entertainment
- TV: TV, satellite TV
- DVD player
- music system
- radio
- CD player
For children
- high chair
Utility
- washing machine: For sole use in the object
- Clothes dryer: For sole use in the object
- iron
- vaccum cleaner
- safe
Outside area
- grill/barbecue: grill/barbecue
Surroundings
- Grocery store: 300 m
- going out: 700 m
- airport: 80,0 km
- beach: 700 m
- sea: 700 m
- golf course: 2,0 km
Climatisation Inclus |
ERV assurance annulation gratuite Inclus |
Frais d'énergie Inclus |
Gaz Inclus |
Internet sans fil (WIFI) Inclus |
Linge de lit (premier jeu) Inclus |
Nettoyage final (le nettoyage de base est toujours à faire par le client) Inclus |
Serviettes (premier jeu) Inclus |
Taxe de séjour à payer sur place par personne et par jour 1,50 € |
Lit bébé (jusqu'à 2 ans) En supplément, à payer sur place prix forfaitaire 15,00 € |

Soyez couverts en cas d'imprévus ou de sinistres en souscrivant à l'assurance location de vacances
Souscrire ?Noorea.com, c'est ...
15 ans d'expérience.
Planning et prix en temps réel.
Réservation 100% sécurisée.
Pas de commissions.
Une équipe à votre écoute.
Vous avez réservé votre maison de vacances sur Noorea.com ?
Noorea propose principalement des propriétés indépendantes : maisons, villas et chalets.
Des hébergements proposés par des centrales de réservation et agences de locations saisonnières.
Réservez votre séjour en toute confiance, les transactions sont cryptées et totalement sécurisées.
Des conseillers sont à votre disposition pour toutes questions, ou pour effectuer une réservation.