surface du terrain: 1100m².
année de construction: 1975.
Propriétaire habite sur le terrain.
Cette villa de vacances de style et très lumineuse se trouve à Gripole, une ville de banlieue avec une bonne desserte routière, tout près de Rovinj.Villa de vacances clôturée, aménagée de manière moderne et luxueuse avec piscine privée éclairée, grande terrasse avec four au bois en pierre, terrain de jeux et avec beaucoup d’intimité
A l’extérieur se trouve la piscine privée de 24 m² qui est entourée de chaises longues et d’un parasol.
Vous pouvez vous y rafraîchir dans la journée après avoir pris un bain de soleil et le soir, l’endroit se transforme en un endroit romantique où la piscine éclairée scintille à l’envi avec le ciel étoilé.
Derrière la villa se trouve la terrasse couverte avec le grand coin repas.
Vous y trouverez deux grandes tables en bois avec des bancs en bois et des chaises pour 12 personnes.
Un grand four à bois en pierre invite à faire des soirées grillades et confère au lieu une atmosphère agréable.
Du bois pour la cheminée est mis gratuitement à votre disposition.
Derrière la villa se trouve également un terrain de jeux pour les enfants et cinq places de parking vous sont réservées devant la villa.
La villa se trouve sur un terrain clôturé de 1 100 m² et a une surface de 160 m².
Elle convient pour douze personnes.
La villa a été construite en 1975 et a été rénovée récemment en 2012 avec beaucoup de goût.
Elle a été décorée avec beaucoup d’amour, chaque chambre à ses propres couleurs.
La villa s’étend sur deux étages qui sont reliés par des escaliers extérieurs.
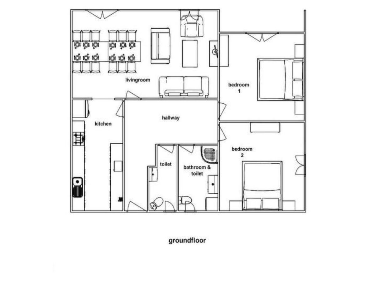
Au rez-de-chaussée se trouve le salon- salle à manger climatisé, la cuisine, l’une des trois salles de bain et deux des cinq chambres à coucher.
Dans la salle de séjour se trouve un canapé en cuir couleur crème et deux fauteuils assortis, une table basse, un téléviseur avec le câble et le satellite et un lecteur DVD.
Le coin repas adjacent est équipé d’une grande table à manger avec douze chaises et mène à la cuisine moderne.
La cuisine claire et spacieuse est équipée d’un réfrigérateur, d’un four, d’un lave-vaisselle, d’une gazinière, d’une machine à café, d’un four à micro-ondes et d’un grille-pain.
Les deux chambres à coucher du rez-de-chaussée disposent, de même que toutes les autres chambres, d’un grand lit (160 x 200 cm) et la salle de bain est équipée d’une douche, d’un lavabo avec miroir et de WC.
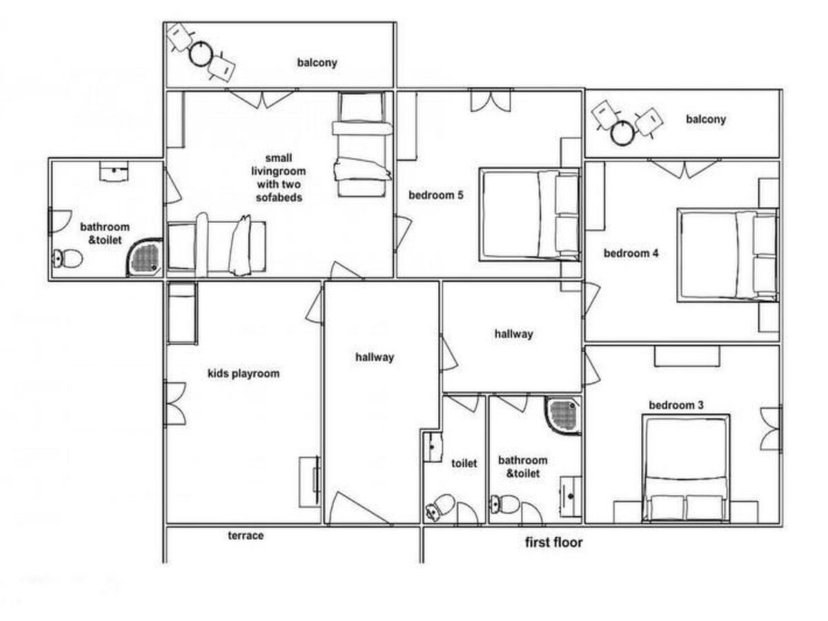
Au premier étage se trouvent les trois autres chambres à coucher ainsi que les deux autres salles de bain (même équipement qu’au rez-de-chaussée).
A l’étage supérieur se trouvent également une salle de jeux pour les enfants qui dispose d’un téléviseur et d’une console de jeux et un petit salon avec des canapés qui peuvent être dépliés pour former deux lits.
L’un des canapés-lits a pour dimensions 120 x 190 cm, l’autre 90 x 190 cm.
La villa dispose également de deux toilettes séparées, aux deux étages, avec un lavabo et une étagère avec miroir.
Un lit pour bébé et une chaise-haut sont à disposition.
Vous avez un accès gratuit à Internet par le WIFI dans la villa.
Les commerces les plus proches se trouvent à environ 1,6 kilomètre.
Vous trouverez un restaurant à seulement 100 mètres de la villa.
Le centre-ville est à 3 km, la plage à 2,5 km.
L’aéroport est à 38 km.
Le propriétaire vit sur le terrain et se tient volontiers à votre disposition pour toutes questions.
Informations de base
- Animaux domestiques admis: 1
- Nombre total d'étages dans le bâtiment au-dessus du rez-de-chaussée: 2
- surface du terrain: 1100 m²
- année de construction: 1975
- dernière grande rénovation : 2012
- Propriétaire habite sur le terrain
- Hauteur au-dessus du niveau de la mer: 35
- Nombre de chambres à coucher: 6
- Nombre de salles de bains : 3
Caractéristiques principales
- WiFi
- climatisation: En partie
- balcon
- terrasse
- jardin: À usage privatif
- piscine extérieure
- ㄴ à usage privatif
- Nombre total de places de stationnement privées: 5
- ㄴ dont places de garage: Aucun
- ㄴ dont places de carport: Aucun
- ㄴ dont places de parking extérieures privées: 5
Dormir
chambre à coucher 12
- lit double (1,80 m de large)
chambre à coucher 15
- lit double (1,80 m de large)
chambre à coucher 18
- 2x canapé-lit pour 1 personne
chambre à coucher 3
- lit double (1,80 m de large)
chambre à coucher 6
- lit double (1,80 m de large)
chambre à coucher 9
- lit double (1,80 m de large)
Salle de bains
Équipement sanitaire dans le logement de vacances
- douche
- lavabo
- WC
- lumière du jour
salle de bains 3
- douche
- lavabo
- WC
- lumière du jour
salle de bains 6
- douche
- lavabo
- WC
- lumière du jour
salle de bains 9
- douche
- lavabo
- WC
- lumière du jour
WC invités
- lavabo
- WC
WC invités
- 2x WC
Cuisiner/Habiter
- cafetière: cafetière
- réfrigérateur/congélateur: compartiment congélation, réfrigérateur
- cuisinière: cuisinière à gaz
- four
- grille-pain
- micro-ondes
- bouilloire électrique
- lave-vaisselle
- nombre de tables de salle à manger: aucune
- nombre de places: aucune
- cheminée
Divertissement
- Téléviseur: TV par câble, TV par satellite
- lecteur de DVD
Pour les enfants
- chaise d'enfant
Entretien ménager
- lave-linge: À usage privatif dans le logement
- fer à repasser
Espace extérieur
- véranda
- terrasse sur le toit
- barbecue: barbecue
- douche extérieure
Environnement
- Magasin d'alimentation: 1,6 km
- cafés / restaurants: 100 m
- gare: 87,7 km
- aéroport: 38,0 km
- plage: 2,5 km
Climatisation Inclus |
ERV assurance annulation gratuite Inclus |
Frais d'énergie Inclus |
Internet sans fil (WIFI) Inclus |
Linge de lit (premier jeu) Inclus |
Nettoyage final (le nettoyage de base est toujours à faire par le client) Inclus |
Serviettes (premier jeu) Inclus |
parking extérieur Inclus |
Caution à payer sur place prix forfaitaire 200,00 € (Valable du 01/01/2024 au 31/12/2099) |
Animal domestique (max. 1) En supplément prix forfaitaire 30,00 € |
Une question à propos de cette maison de vacances ?

Soyez couverts en cas d'imprévus ou de sinistres en souscrivant à l'assurance location de vacances
Souscrire ?Noorea.com, c'est ...
15 ans d'expérience.
Planning et prix en temps réel.
Réservation 100% sécurisée.
Pas de commissions.
Une équipe à votre écoute.
Vous avez réservé votre maison de vacances sur Noorea.com ?
Noorea propose principalement des propriétés indépendantes : maisons, villas et chalets.
Des hébergements proposés par des centrales de réservation et agences de locations saisonnières.
Réservez votre séjour en toute confiance, les transactions sont cryptées et totalement sécurisées.
Des conseillers sont à votre disposition pour toutes questions, ou pour effectuer une réservation.