Villa à Sveti Lovreč avec piscine
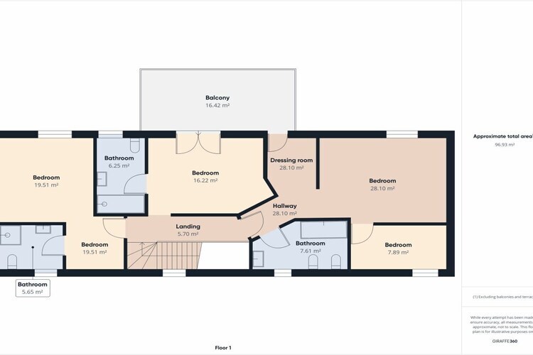
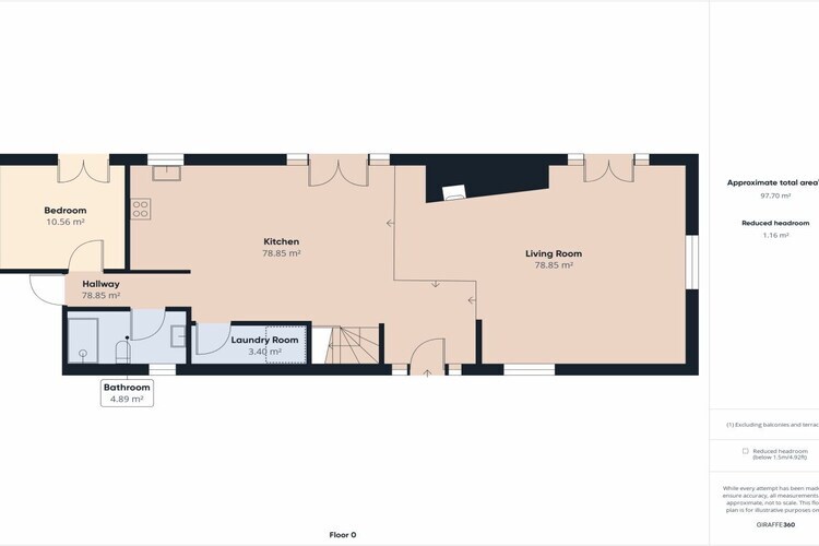
Vous disposerez de 4 chambres spacieuses, d'une chambre d'enfants, de 4 salles de bains spacieuses et de toilettes séparées. Un spacieux salon avec cheminée, un coin repas et une cuisine entièrement équipée sont également à votre disposition. Dans le vaste et magnifique jardin clôturé et verdoyant, vous pourrez vous détendre au bord de la grande piscine privée chauffée et profiter du soleil d'Istrie. La profondeur de la piscine varie de 40 à 160 cm. La villa est entièrement climatisée et dispose d'une connexion Wi-Fi gratuite, d'un parking privé et de tout le confort nécessaire pour des vacances reposantes. Avec ses éléments et détails traditionnels, la Villa Azzurra offre tout le nécessaire pour des vacances parfaites, relaxantes et agréables.
Électricité : Inclus Inclus |
Nettoyage final : Included En supplément |
Animaux : Max. 1; € 10/nuit En supplément |
Draps : Included En supplément |
Eau : Included En supplément |
Wifi Included |
Serviettes de bain Included |
Lit bébé Included |
Chaise haute Included |
Lave Linge Included |
Chauffage Included |
Une question à propos de cette maison de vacances ?

Soyez couverts en cas d'imprévus ou de sinistres en souscrivant à l'assurance location de vacances
Souscrire ?Noorea.com, c'est ...
15 ans d'expérience.
Planning et prix en temps réel.
Réservation 100% sécurisée.
Pas de commissions.
Une équipe à votre écoute.
Vous avez réservé votre maison de vacances sur Noorea.com ?
Noorea propose principalement des propriétés indépendantes : maisons, villas et chalets.
Des hébergements proposés par des centrales de réservation et agences de locations saisonnières.
Réservez votre séjour en toute confiance, les transactions sont cryptées et totalement sécurisées.
Des conseillers sont à votre disposition pour toutes questions, ou pour effectuer une réservation.